1. HOME
  2. 施工事例
  3. 住宅設備工事
  4. LED照明交換工事の事前調査に伺いました
WORKS

施工事例

住宅設備工事

LED照明交換工事の事前調査に伺いました

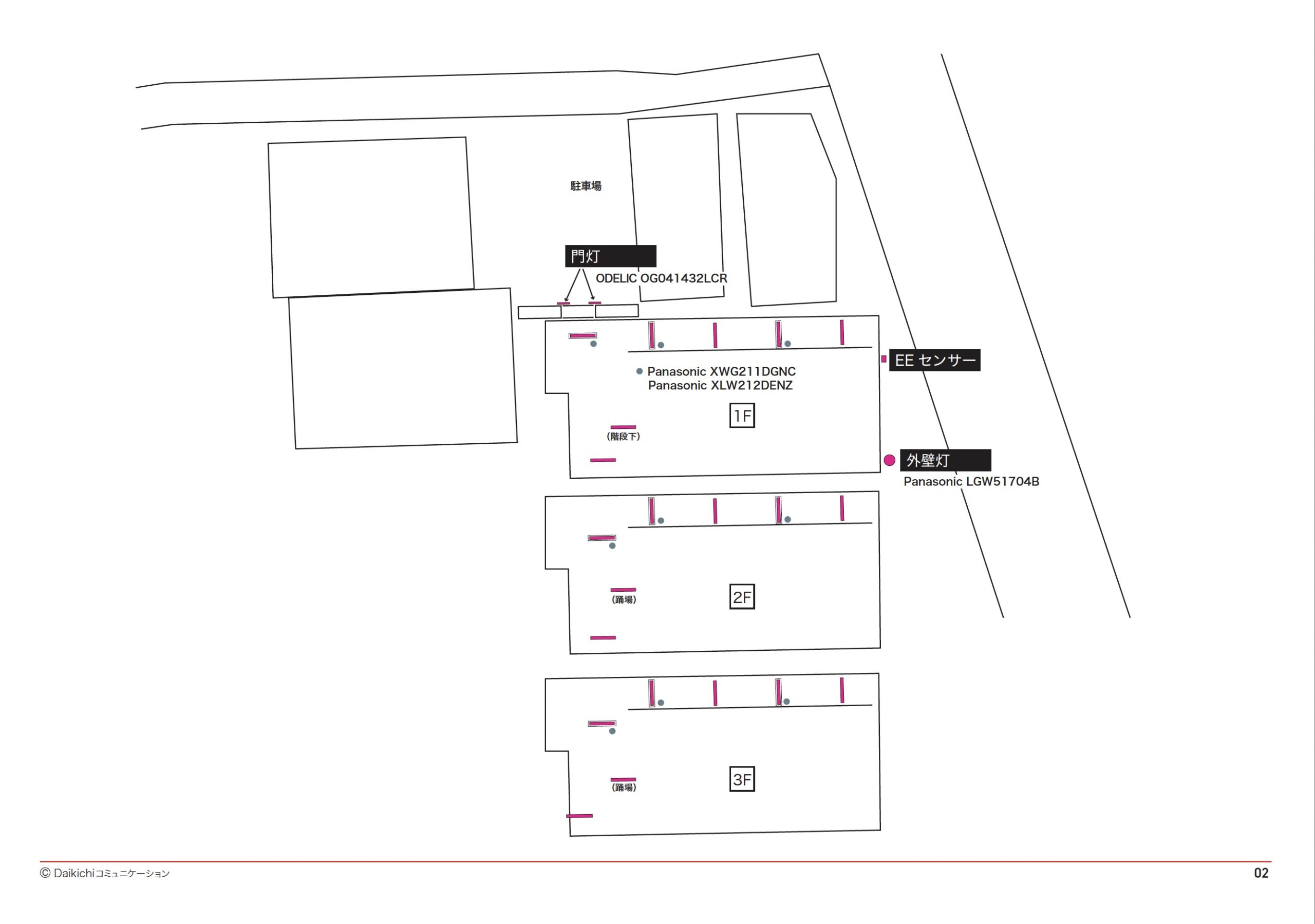
オーナー様からのご依頼で、川崎市中原区の集合住宅のLED交換工事の現地調査に伺いました。築30年、地上3階建てのマンションです。

見積もり提案書作成のため、現在設置されているすべての照明器具の型番を調べていきます。

門灯のように埋込み型の照明器具は奥行きを含めたサイズを測り、適したLED照明器具をご提案します。

調査資料をもとに、LED照明器具を選定し、提案書とお見積りを作成します。
弊社では、LED照明器具の設置工事のお見積り書作成は無料で行っています。お気軽にお問い合わせください。

施工事例